download brochure

Key Features

A superb, ring-fenced farm on the edge of the Howardian Hills AONB and with good links to York and Malton. Rectory Farm is located on the edge of the village of Thornton-le-Clay approximately 8.5 miles south-west of Malton and 8 miles north-east of York.

The property is available as a whole or in lots to suit purchasers.

The property comprises of:

Rectory Farmhouse – Victorian farmhouse currently split into two dwellings

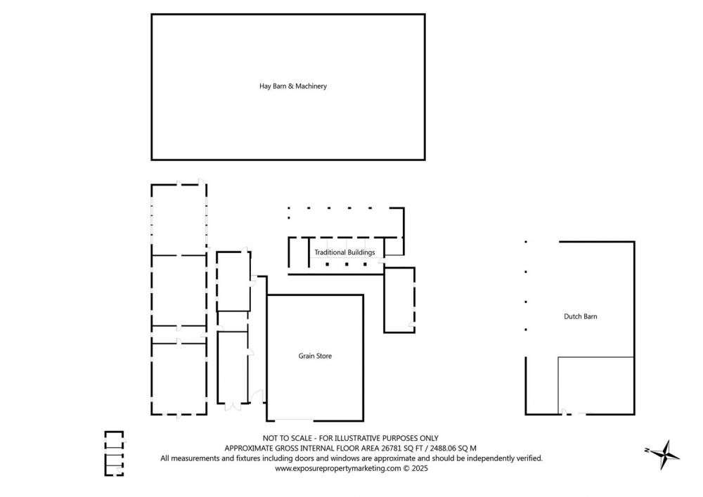
The Farm Buildings - A range of traditional and modern buildings extending to over 25,000 square feet

Paddock – 1.78 acre (0.72 hectare) paddock with planning for x3 Glamping Lodges

156.28 acres (63.25 hectares) of Grade 2 & 3 arable land

Offers over: £2,200,000

DESCRIPTION

Rectory Farmhouse is a superb Victorian farmhouse originally built in the 1890’s and split into two by the current Vendors. Located in the village of Thornton-le-Clay, which has excellent links to both Malton and York via the A64. Primary schooling is available in the village and there are several secondary schools, both private and state, in Malton and York.

The property is set back from the main road down its own private drive. The accommodation comprises 260.69 square metres (2,806 square feet) and is outlined in more detail below:

RECTORY FARMHOUSE

ON THE GROUND FLOOR

UTILITY

With tile floor, units at low level and plumbing for a washing machine.

BATHROOM

With tile floor, shower and WC.

KITCHEN

With tile floor, units at low and high level, with stainless steel sink, integrated dishwasher and an oil-fired AGA.

DINING ROOM

With wood floor.

SITTING ROOM

Character fireplace with wood burner.

TO THE FIRST FLOOR

BEDROOM 1

Double bedroom with carpet floor and disused fireplace.

BEDROOM 2

Double bedroom with airing cupboard and carpet floor.

BEDROOM 3

Double bedroom with carpet floor.

BEDROOM 4

Double bedroom with carpet floor.

BEDROOM 5

Single bedroom with carpet floor.

BATHROOM

Panel bath, WC, sink unit and heated towel rail.

RECTORY FARM COTTAGE

ON THE GROUND FLOOR

KITCHEN

With wood effect vinyl flooring, units at low and high level, with stainless steel sink, plumbing for a dishwasher and integrated double cooker.

DINING/SITTING ROOM

Large open plan dining/ sitting room with wood burner.

BATHROOM

Large double shower, WC, sink unit and heated towel rail.

TO THE FIRST FLOOR

BEDROOM 1

Double Bedroom with carpet floor.

BEDROOM 2

Double Bedroom with integrated cupboard and carpet floor.

BEDROOM 3

Double Bedroom.

STUDY

Currently used as a home office.

FARM BUILDINGS

The buildings are located to the east of the dwelling based around a large yard area. The buildings comprise over 25,000 square feet and a range of structures as outlined below:

BUILDING 1

1,960 sq ft
Traditional brick built stable block with concrete floor. With water and electric.

BUILDING 2

3,300 sq ft
Grain store with concrete panel walling to 3m with sheeting above, concrete floor under a sheet roof. There is a roller shutter door to the front. The building has electric.

BUILDING 3

1,800 sq ft
Former pig building with concrete floor currently used as storage. With water and electric.

BUILDING 4

1,550 sq ft
Traditional brick-built building with concrete floor. With electric.

BUILDING 5

600 sq ft
Traditional brick-built building concrete floor. With water and electric.

BUILDING 6

10,750 sq ft
Steel portal framed general purpose building. Currently used as machinery store and workshop. With water and electric.

BUILDING 7

5,225 sq ft
Dutch Barn with lean-to. With electric.

LAND

The land extends to 158.06 acres of arable land. The land is classified as Grade 2 and 3 on the Agricultural Land Classification and falls within the Wickham 2 soil series being slowly permeable soils, suitable for winter cereals.

The land is currently within a crop rotation of Winter Wheat, Spring Beans, Winter Wheat and Winter Oats.

Field 1167, known as the Paddock, is pastureland and has full planning permission (Ref: ZE23/05020/FUL) for glamping cabins. The permission is for the ‘change of use from agricultural land for the siting of 3 glamping cabins, attenuation pond and car park’. Permission was granted in January 2024.

The land is currently within a Sustainable Farming Incentive agreement which is due to end in April 2026.

A schedule of the land is included below:

GENERAL INFORMATION

SERVICES

The house has mains water, mains electric, oil-fired central heating and septic tank drainage. There is water and electric to some of the buildings.

FIXTURES AND FITTINGS

Unless specified in these details, the fixtures and fittings relating to any of the property, buildings and land (including the mobile home) are not included in the sale but may be available by separate negotiation.

WAYLEAVES AND EASEMENTS

There are overhead telegraph poles over Field No’s 2384 & 3060. The land is sold subject to all wayleaves and easements, weather mentioned in these sales particulars or not.

PUBLIC RIGHTS OF WAY

Rectory Farm is sold subject to all rights of way, public or private, whether mentioned in these sales particulars or not. There is a public footpath shown in blue on the OS Plan. There is a bridleway which runs along the southeastern boundary of Field 6711.

NITRATE VULNERABLE (NVZ)

Fields 3060 and 3938 fall within a NVZ which will limit the times of year fertiliser can be applied.

SPORTING AND MINERAL RIGHTS

These are included in the sale, in so far as they are owned.

TENURE

We have not had sight of the title deeds; however, we have been advised the property is freehold and vacant possession can be gained of the whole premises immediately.

ENERGY PERFORMANCE CERTIFICATE

Rectory Farmhouse is assessed in Band G.

COUNCIL TAX BAND

Rectory Farmhouse is assessed in Council Tax Band G.

OVERAGE

The sale of Field 2384 is subject to an overage clause for a period of 30 years whereby 30% of the uplift in value is reserved to the Vendors in the event of planning permission being granted for any development other than agricultural, horticultural or equestrian.

LOCAL AUTHORITY

North Yorkshire Council, County Hall, Northallerton

PLANS AND MEASUREMENTS

The plans, areas and measurements provided are for guidance and subject to verification with the title deeds. It must be the responsibility of any prospective Purchaser to carry out an adequate inspection and site survey to satisfy themselves where the extent of the boundaries will lie.

METHOD OF SALE

The land is offered for sale by private treaty as a whole. The Vendor reserves the right to conclude the sale by any means.

VAT

It is understood that the property is not assessed for VAT and any offers made are on the basis that VAT will not be charged on the purchase price.

ANTI-MONEY LAUNDERING REGULATIONS

The Agent must comply with Anti Money Laundering regulations. As part of the requirements, the Agent must obtain evidence of the identity and proof of address of potential Purchasers. Prior to an offer being accepted, all parties who are purchasing must provide the necessary evidence.

WHAT3WORDS

///germinate.twitches.calculate

VIEWING AND REGISTRATION

Please note if you have downloaded these particulars from our website you must contact the office to register your interest or you will not be included on future mailings regarding this sale.
Please also register at www.stephenson.co.uk for regular email updates.

AGENT CONTACT

Stephensons Rural, York Auction Centre, Murton YO19 5GF
T: 01904 489 731
Johnny Cordingley MRICS FAAVe: jc@stephenson.co.uk
Lauren James BSc (Hons) e: lauren.james@stephenson.co.uk

VENDOR'S SOLICITOR

TBC.

DATE OF INFORMATION

Particulars prepared & Photographs taken – September 2025
Reference - 23263

Loading... Please wait.

Loading... Please wait.

EPC
Mortgage Calculator

Use our mortgage calculator to estimate your monthly payments.


Find Out More
Stamp Duty Calculator

Use the calculator to estimate your SDLT costs.


Find Out More
SDLT Calculator

Further information on your estimated SDLT costs.


Find Out More