download brochure

Key Features

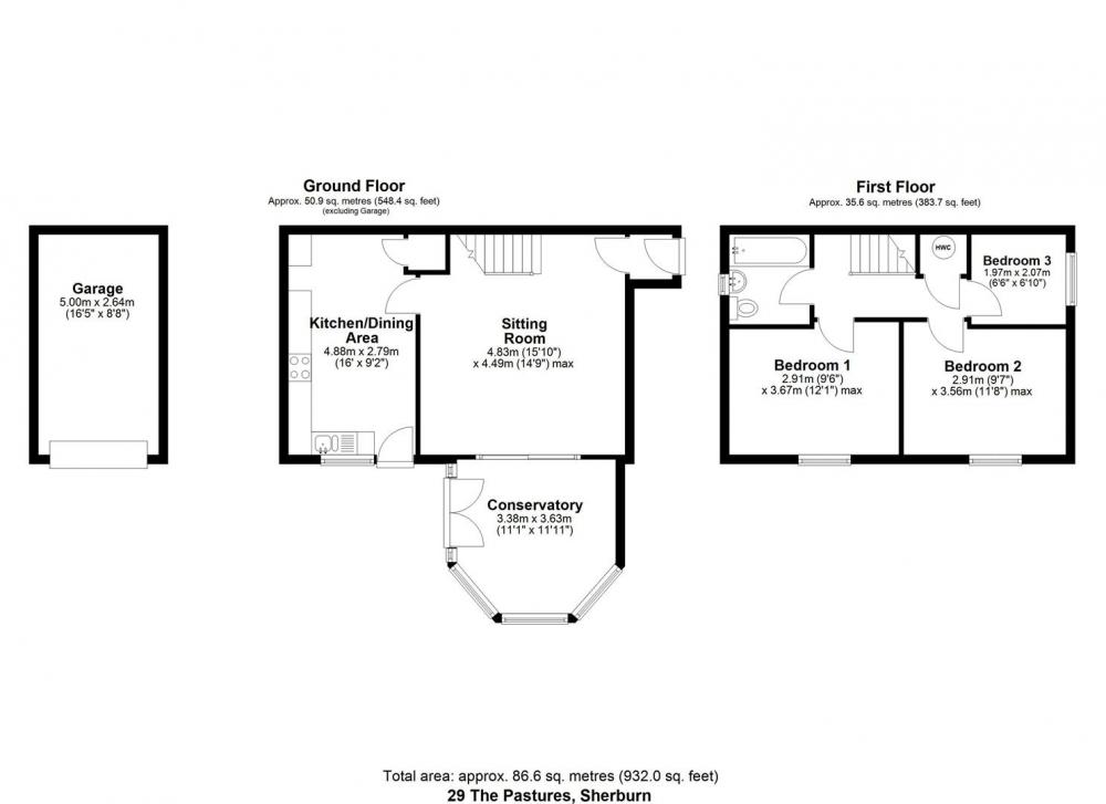
29, The Pastures is a well presented modern end of terrace property offering spacious accommodation throughout comprising entrance, good sized sitting room, conservatory and dining kitchen on the ground floor with three bedrooms and bathroom on the first floor.
Externally there is an enclosed garden, garage and parking space.
The village of Sherburn offers a range of local amenities and lies on the A64 between Malton and Scarborough.

Entrance Door

Leads to:

Entrance Porch

With door leading to sitting room.

Sitting Room

With laminate flooring, dado rail, central heating radiator, stairs to first floor landing, patio doors lead to conservatory.

Conservatory

With double glazed windows, door to outside and central heating radiator.

Dining Kitchen

With 1 1/2 bowl drainer sink unit set within rolled edge work surfaces with tiled splash backs, wall and base units incorporating drawer compartments, built in oven with four ring gas hob, display cabinets, double glazed window, plumbing for automatic washing machine, central heating radiator, understairs storage cupboard and door to outside.

First Floor

Galleried Landing

With built in cupboard, access to roof space which is partially boarded and central heating radiator.

Bedroom One

With double glazed window and central heating radiator.

Bedroom Two

With double glazed window, laminate flooring and central heating radiator.

Bedroom Three

Double glazed window, laminate flooring and central heating radiator.

Bathroom

Comprising panelled bath with shower unit over, pedestal wash hand basin, low flush w.c., partial wall tiling, double glazed window and central heating radiator.

Outside

Private driveway to the front of the garage located in the courtyard area.
Enclosed rear garden with paved and bark areas, laid lawn, partial wall and fencing to the boundaries.

Services

Mains electricity, water and drainage are connected.
Central heating via communal LGG tank that serves all the properties on The Pastures.

Loading... Please wait.

Loading... Please wait.

EPC
Mortgage Calculator

Use our mortgage calculator to estimate your monthly payments.


Find Out More
Stamp Duty Calculator

Use the calculator to estimate your SDLT costs.


Find Out More
SDLT Calculator

Further information on your estimated SDLT costs.


Find Out More