download brochure

Key Features

A rare opportunity to purchase a traditional stone barn with full planning permission for conversion to a single dwelling, in this delightful picturesque location on the edge of the village of Chop Gate, within the North York Moors National Park. The sale includes adjoining grassland extending in all to 9.58 acres (3.88ha) or thereabouts and offers scope to create the most stunning rural property.

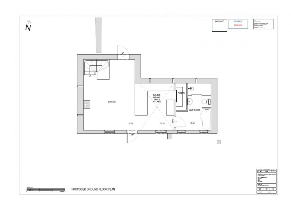
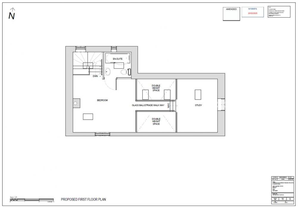
Full planning permission has been granted on 28th February 2025 under Decision No. NYM/2024/0832 Please note the dwelling is subject to a Local Occupancy Clause. Further details are on the scope of the Local Occupancy Clause and a copy of the Decision Notice and associated documents are available from the selling agents.

DESCRIPTION

A rare opportunity to purchase a traditional stone barn with full planning permission for conversion to a single dwelling, in this delightful picturesque location on the edge of the village of Chop Gate, within the North York Moors National Park. The sale includes adjoining grassland extending in all to 9.58 acres (3.88ha) or thereabouts and offers scope to create the most stunning rural property.

Full planning permission has been granted on 28th February 2025 under Decision No. NYM/2024/0832 and please note the dwelling is subject to a local occupancy clause.

Further details are on the scope of the local occupancy clause and a copy of the Decision Notice and associated documents are available from the selling agents.

LOCATION

Chop Gate is a village within the North York Moors National Park, situated 7.5 miles of Stokesley.

WHAT3WORDS

///protrude.widgets.encloses

PLANNING PERMISSION

Under Decision Notice Number NYM/2024/0832 dated 28th February 2025 for conversion of former stable building to form one local occupancy residence dwelling with garden together with landscaping works, removal of timber garage, provision of two parking spaces and improvement works to existing vehicular entrance at land and building west of the B1257 (located north west of Bridge End Cottage), Chop Gate.

LOCAL OCCUPANCY CLAUSE

Under the approved planning consent, the occupation of the dwelling shall be limited to persons with a connection to the National Park, by way of residency, employment or other requirements. Further details are available under Condition 4 of the Decision Notice NYM/2024/0832.

RIGHTS OF WAY, WAYLEAVES AND EASEMENTS

The property is sold subject to all rights of way, public or private, whether mentioned in these sales particulars or not. The Vendor’s are not aware of any public rights of way crossing the land.

SERVICES

Any prospective purchasers are to make their own enquiries in relation to connections to mains water, drainage and electricity. Any offers are to be as an unconditional basis.
A) Local Authority: North Yorkshire Council, County Hall, Northallerton, DL7 8AD. Tel: 0300 131 2131.
B) Foul Drainage and Water: Yorkshire Water Authority, Western House, Halifax Road, Bradford BD6 2SZ. Tel: 0345 1 24 24 24
C) Highways: North Yorkshire Council, County Hall, Northallerton, DL7 8AD. Tel: 0300 131 2131.
D) National Park: North York Moors National Park, The Old Vicarage, Bondgate, Helmsley, York, YO62 5BP. Tel: 01439 772700.

TENURE

Freehold with vacant possession upon completion.

METHOD OF SALE

For sale by Private Treaty as a whole. The vendor reserves the right to change the method of sale depending on the level of interest gained from the marketing process.

VIEWING

By permit from the Agents only. Please note if you have downloaded these particulars from our website you must contact the office to register or you will not be included on further mailings regarding this sale. Please also register at www.boultoncooper.co.uk for regular email updates for this property and other available properties.

AGENT CONTACT

Henry J Scott MRICS
07739 983806 / 01653 692151
henry.scott@boultoncooper.co.uk

PLANS, AREAS AND MEASUREMENTS

The plans, areas and measurements provided are a guide and subject to verification with the title deeds. The land is identified on the attached plan, shown edged in red. It will be the responsibility of any prospective purchaser to plot the boundary of the land following the sale and to carry out an adequate inspection and site survey to satisfy themselves where the extent of the boundaries will lie.

ANTI-MONEY LAUNDERING REGULATIONS

The Agent must comply with Anti Money Laundering Regulations. As part of the requirements, the Agent must obtain evidence of the identity and proof of address of potential buyers. Prior to an offer being accepted, all parties who are purchasing must provide the necessary evidence.

Loading... Please wait.

Loading... Please wait.

Mortgage Calculator

Use our mortgage calculator to estimate your monthly payments.


Find Out More
Stamp Duty Calculator

Use the calculator to estimate your SDLT costs.


Find Out More
SDLT Calculator

Further information on your estimated SDLT costs.


Find Out More