download brochure

Key Features

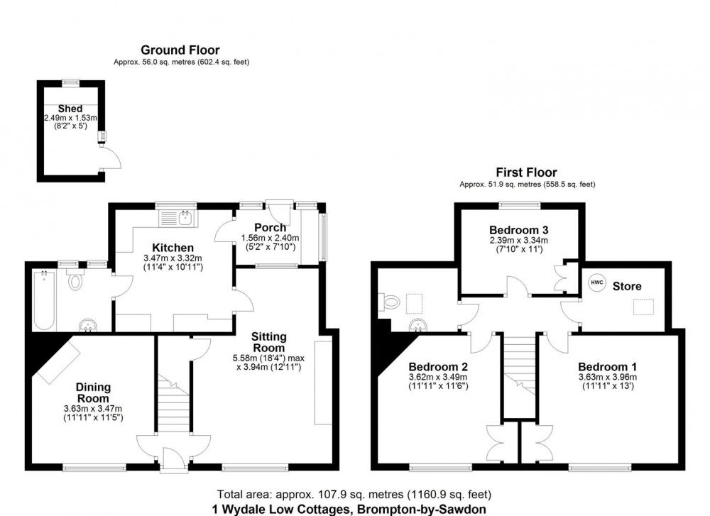
1, Wydale Low Cottages is an attractive three bedroom end terrace family house occupying a unique position situated just outside the village of Brompton by Sawdon enjoying far reaching views over the surrounding countryside.
The property enjoys a south facing position and offers accommodation on two floors comprising
reception hallway, sitting room, separate dining room, dining kitchen, ground floor bathroom and rear porch on the ground floor with landing, three good sized bedrooms and cloakroom.
Externally there is a rear garden with patio area with further garden which is laid to lawn with a vegetable garden.
A driveway leads to larger than average garage.

Accommodation Comprises

Entrance Door

Leads to:

Entrance Lobby

With stairs to first floor landing and meter cupboard.

Dining Room

With feature fireplace, cast iron surround and tiled inset with tiled hearth, central heating radiator, picture rail and double glazed window to the front elevation and serving hatch to kitchen.

Sitting Room

With tiled fireplace and open dog grate, double glazed window to the front elevation, understairs storage cupboard, central heating radiator, window to the rear, coving to ceiling and feature archway.

Kitchen

Comprising single drainer sink unit set within rolled edge work surfaces, further wall and base units incorporating drawer compartments, space for cooker, tiled splash backs, welsh dresser and display cabinets, plumbing for automatic washing machine and plumbing for dishwasher. Spot lighting, central heating radiator and double glazed window to the rear elevation, door to bathroom and stable door to garden room.

Bathroom

Comprising panelled bath, shower unit, pedestal wash hand basin, low flush w.c.., central heating radiator, wall tiling, wood panelling to ceiling, two double glazed windows to the rear elevation.

Garden Room

With double glazed windows, range of base units with rolled edge work surfaces and door to outside.

First Floor landing

Access to roof space.

Bedroom One

With built in wardrobe and cupboard above, double glazed window to the front elevation overlooking fields, central heating radiator.

Bedroom Two

Built in wardrobe with cupboard above, double glazed window to the front elevation and overlooking fields, central heating radiator.

Bedroom Three

Fitted wardrobe, double glazed window to the rear elevation, central heating radiator.

Cloakroom

With pedestal washhand basin and low flush w.c., central heating radiator, double glazed skylight window.

Storage Room

With double glazed skylight window, hot water cylinder and shelving.

Outside

Patio area with brick store 2.49m x 1.53m, shared driveway leads to parking and driveway with Garage/Workshop 4.86m x 5.9m having sliding doors and light. Rear garden with laid lawn, vegetable garden and flower border, hedgerow to the boundaries. A raised front garden with laid lawn, pathway, climbing rose with hedgerow to the front, with well established flowers, shrubs and trees and rockery.
There is a shared access to the rear of the row of cottages.

Services

Main Electricity, gas and water.
Septic tank drainage shared by all five properties.
Gas central heating and two open fires.

Loading... Please wait.

Loading... Please wait.

EPC
Mortgage Calculator

Use our mortgage calculator to estimate your monthly payments.


Find Out More
Stamp Duty Calculator

Use the calculator to estimate your SDLT costs.


Find Out More
SDLT Calculator

Further information on your estimated SDLT costs.


Find Out More